母线是指在成套开关柜中起到关键作用的导体,它的主要功能是连接柜间以及柜内的各种电气设备,实现电能的汇集、分配和传送。母线在开关柜中的地位举足轻重,就如同人体的血管一样,将电力源源不断地输送到各个设备中。 当发生短路故障时,母线需要承受短路电流所带来的巨大发热和电动力作用。这就要求母线具备良好的导电性能、耐热性能和机械强度,以确保在短路情况下能够稳定工作,不至于出现熔断、变形等问题,从而保障整个电力系统的正常运行。
2024-08-19 科威
红外成像测温柜门发现主变出口总开关接触不良
2023-08-24 科威
IEEE标准中压开关柜要求
2022-11-28 科威
空气绝缘开关柜知识介绍分享
2022-11-16 科威
40.5kV开关柜绝缘可靠性的探究分享
2022-11-15 科威
穿心电流互感器的中压应用分享
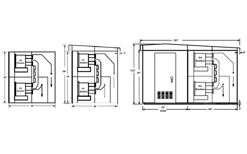
2022-11-14 科威
中压开关柜改造解决方案分享
2022-11-03 科威
关于接地开关关合知识分享
2022-10-31 科威